
안녕하세요*^^*
자연과 사람을 위하는 기업
㈜S합성데크입니다.
찌는 더위 피해 시원하게 물놀이들 다녀오셨나요?? ㅎㅎ
뜨거운 태양만큼이나
뜨거운 열정으로
안팎으로 올여름을 이겨내고 있는 S식구들입니다ㅎㅎ
마무리된 현장들은 많은데 블로그로 소개시켜드릴 시간조차 없는 요즘...
그래도 최대한 짬이 나는 대로 부지런히 포스팅하여 멋진 나만의, 모두의 데크공사를 계획하시는 분들에게
조금이나마 도움이 되셨으면 하는 마음으로 힘내어 포스팅해보겠습니다!
오늘은 경상남도 산청군에 위치한 농막 (이동식 소형 주택) 현장입니다.
한적한 시골, 푸른 산들에 둘러싸여 숨 쉬는 것만으로도 건강해지는 듯한
자연의 기운을 그대로 느낄 수 있는 곳에 위치한 농막!
현장부터 보실까요~?!


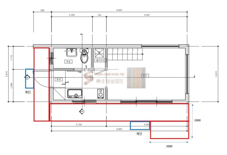
농막의 평면도에 시공 면적을 직접 표시하시고, 데크 공사 의뢰를 주셨습니다!
큰 면적은 아니지만 소소하게 데크 위에 걸터 앉아 휴식을 취하시는 등,
다양한 공간 활용도를 낼 수 있는 디자인으로 직접 제안을 주셨어요^^


공사전 기초 스케치를 통하여 시안을 보여드리고, 물량 등의 공사 계획을 하였습니다!
출입구에 있던 기존 목재 데크 계단은 철거를 하고, 기초 하지작업에 돌입하였습니다.


데크 공사에서 가장 중요시되는 기초/하지 작업입니다.
해당 면적의 토지가 아직 단단하지 않은 흙들로 이루어져 있어,
기초석(기초콘크리트)을 중간중간 이용하여 지주를 세워서 침하를 방지하였습니다.

[ 데크 하지 작업을 아무리 튼튼히 하여도, 기초가 흔들리면 전체가 흔들리기 때문이죠! ]

녹과 부식 방지를 위한 아연도각관을 이용하여 데크 하지 작업을 완료한 모습입니다.
전체 높이는 출입구 문에 맞추어 레벨을 잡고, 수평 체크도 꼼꼼히!
기초석의 기둥, 각관의 면을 이용한 기둥들을 많이 세워 단단한 하지가 될 수 있도록 하였습니다.

[ 현장상황(토지의 형질 등)에 따라 기초 작업 공정을 판단! 안정성을 UP! ]
데크의 뼈대가 되는 하지 작업이 마무리가 되고 나면, 이어서 상판과 측면마감 작업을 실행합니다.


오늘 현장에 사용될 데크재는 '미네랄데크 오픈형[200*25T]' DB(다크브라운) 색상입니다.
측면 마감은 같은 색상의 미네랄 마감재로~
목분이 함유되지 않아 빗물과 해충에 의한 부패가 없는 미네랄데크!
(친환경 합성수지와 미네랄류를 원료로 국내 단독 생산.)
논슬립이 KS기준치의 2배! 미끄럽지 않은 미네랄 데크!

특히 이번 현장에 선택된 오픈형 [200*25T]은
국내 유일 200mm폭의 데크재로 넓은 폭이 주는 안정감, 대청마루와 같은 느낌을 줄 수 있습니다.
( 음양각의 나뭇결 무늬와 고목나무 빛깔과 같은 DB색상이 더욱 고풍스러운 데크 연출! )
데크재 소개도 드렸으니, 다시 현장으로 가보겠습니다!


클립형 시공으로 상판의 피스 노출을 최소화하는 방식의 작업을 하였습니다.
미관상으로도 좋고! 맨발로 다녀도 될만큼의 안정성까지 덤으로!


미네랄 마감재를 이용한 측판 마감까지 꼼꼼히 작업하고,
파놓았던 흙들도 고르게 정리하여 합성데크(미네랄데크) 공사를 완료하였습니다.
자칫 시야를 가릴 수 있는 난간대는 설치하지 않아서
오히려 아담하고도 분위기를 더해주는 농막 앞 확장된 공간 활용이 될 수 있을 것 같습니다!

공사 후 미비된 점은 없는지 체크를 하고, 잠시 데크 위에 걸터 앉아 힐링타임을 가졌습니다...

농막을 둘러싼 산바람을 맞으며, 흔들거리는 나뭇잎 소리에 귀 기울이니
잠깐이지만 이런 맛에 보람과 행복을 느끼게 됩니다...
작고 사소한 것에서도 웃음 가득하시길 바라며
언제든지 편하게 S합성데크의 문을 노크해주세요!!
친절 상담과 확실한 공사로 맞이 하겠습니다!!

이상, 경상남도 산청군 농막 앞 합성데크(미네랄데크) 현장이었습니다~!
다음 현장 소개로 뵐게요~ 감사합니다^^
미네랄데크란?
세월과 환경이 만든 자연 그대로의 질감을 가진 모방 할 수 없는 자재의 혁명!
다년간의 합성목재 노하우를 바탕으로 보다 앞선 기술력으로
경량화, 치수 안정, 저비용 내구성 강화 및 반영구적인 무하자 제품입니다.
안전한 논슬립 미네랄데크로 물놀이 이후에도 미끄럼 걱정이 전혀 없습니다!
KS 기준 2배의 미끄럼 방지로 우천 시에도 안전한 논슬립입니다.
추후 관리 비용 또한 들지 않으며 목재보다 더욱이 오래 유지되며
자재 비중도 1.0으로 가벼운 고강도 제품으로 튼튼합니다.
색감과 질감 또한 일반 방부목보다 훨씬 고급스럽고 돋보인다는 사실!!
수분(물)에 대한 한계 극복한 (물속 시공 가능) 미네랄 데크는
목분을 전혀 함유하지 않고 미네랄류를 함유하고 있어
수분을 흡수하지 않아 수분에 장기간 노출되어도
수분에 의한 수축 팽창이 전혀 없는 안정적인 제품입니다.
또한 기존의 방부목, 합성목재 데크재와 달리
오일스테인 유지관리 작업이 필요 없고 썩음, 갈라짐이 없어
반영구적으로 사용이 가능합니다.
오늘도 에스합성데크와 함께
감사합니다^^





S합성데크
자연과 사람을 위하는 기업 친환경 합성목재 선두 기업이자 제조 1세대 업체 ㈜S합성데크입니다.
pf.kakao.com
24시간 채팅 견적문의 및 상담 채널 Click ↑↑↑
S합성데크
자연과 사람을 위하는 기업 ㈜ S합성데크입니다. 친환경 합성목재 선두 기업이자 제조 1세대 업체인 ㈜ S합성데크는 국내 최고의 기술력과 경험을 바탕으로 합성목재 곡면휀스에 이어 신자재 미
www.youtube.com
#데크 #decking #wpcdecking #compositedecking #wpcdeck #합성데크 #미네랄데크 #합성목재 #유치원 #인테리어 #옥상 #펜션 #풀장 #등산로 #병원 #건축자재 #개인주택 #데크시공 #방부목 #타운하우스 #리모델링 #정원공사 #주택데크 #휴게공간 #조경공사 #주택데크 #테라스 #데크테라스 #데크공사 #공원공사 #공원데크 #썬룸 #데크썬룸 #썬룸시공 #지붕 #징크판넬 #잡철 #각관 #파이프 #개인주택썬룸공사 #개인주택데크공사 #농막
| 경북 안동시 장애인종합복지관 옥외 판재 울타리(휀스) 시공. (0) | 2022.08.31 |
|---|---|
| 경북 청도군 이서고등학교 원형 합성데크(미네랄데크) 공사. (0) | 2022.08.24 |
| 대구 논공초등학교 운동장 스탠드 합성데크(미네랄데크) 벤치 공사. (0) | 2022.08.04 |
| 대구 달성군 유가읍 베이커리 카페 합성데크(미네랄데크) 공사 (Feat.롤링핀 비슬산점) (0) | 2022.07.25 |
| 경북 포항시 흥해 전원주택 합성데크(미네랄데크), 합성목재 울타리, 썬룸(징크판넬지붕) 시공. (0) | 2022.07.14 |
댓글 영역